Bestandserfassung der technischen Ausstattung der Klimaanlage im Hotel Lunik in Eisenhüttenstadt
Das Hotel Lunik in Eisenhüttenstadt ist ein 1963 fertiggestelltes und seit 2002 denkmalgeschütztes Bauwerk im Stil der Moderne. Es diente als Hotel, Kultur- und Gesellschaftseinrichtung für die damals neuerbaute Wohnstadt des Eisenhüttenkombinats Ost. Der Hotelbetrieb wurde im April 2000 endgültig eingestellt.
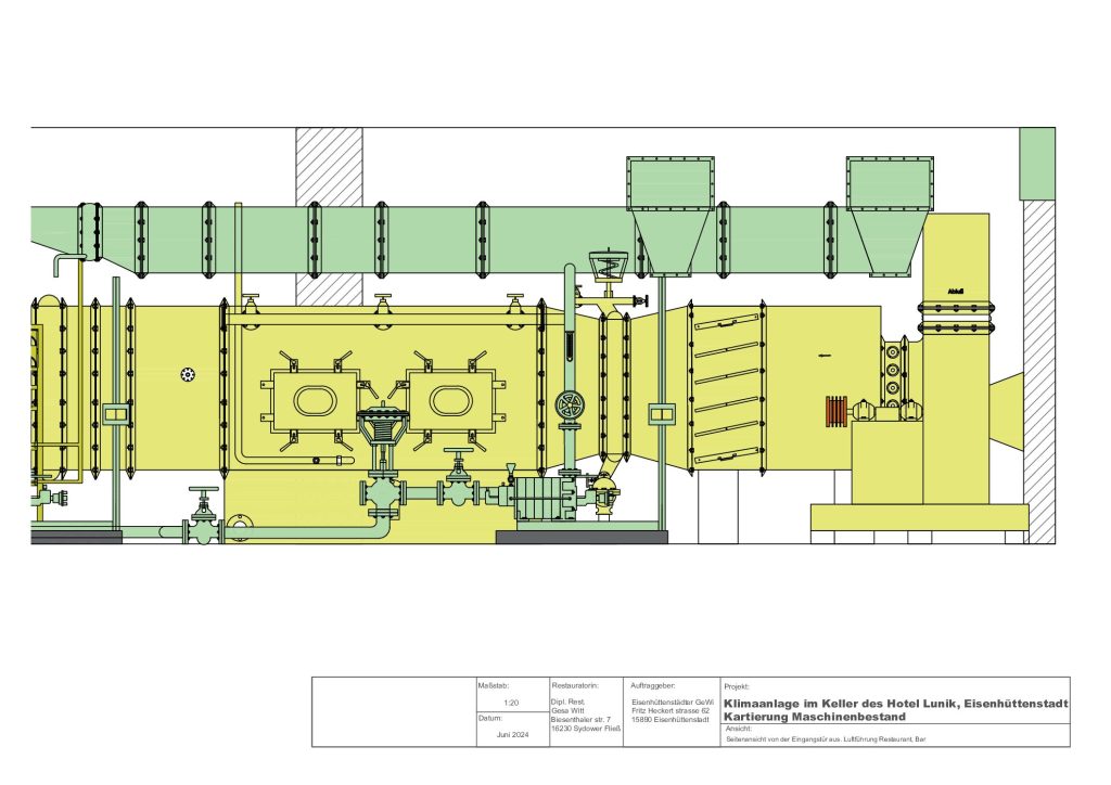
Die Klimaanlage im Kelleraum wurde unter Denkmalschutz gestellt. Sie sollte dokumentiert werden, es sollte eine Begriffs- und Funktionsklärung vorgenommen werden, eine technikgeschichtliche Bewertung und eine Restauratorische Einschätzung der nötigen Maßnahmen zur Erhaltung.
Der Kellerraum wurde Photographisch dokumentiert und in AutoCAD eine Draufsicht und eine Ansich dargestellt. Mit einem ehemaligen Mitarbeiter der Herstellerfirma und Anhand der Zeichnungen konnte die Funktionsweise erklärt werden. Die technikgeschichtliche Relevanz wurde durch eine Archivrecherche erstellt. Aus den ganzen Daten konnte eine restauratorische Einschätzung erarbeitet werden.
Live PreviewLikes:





